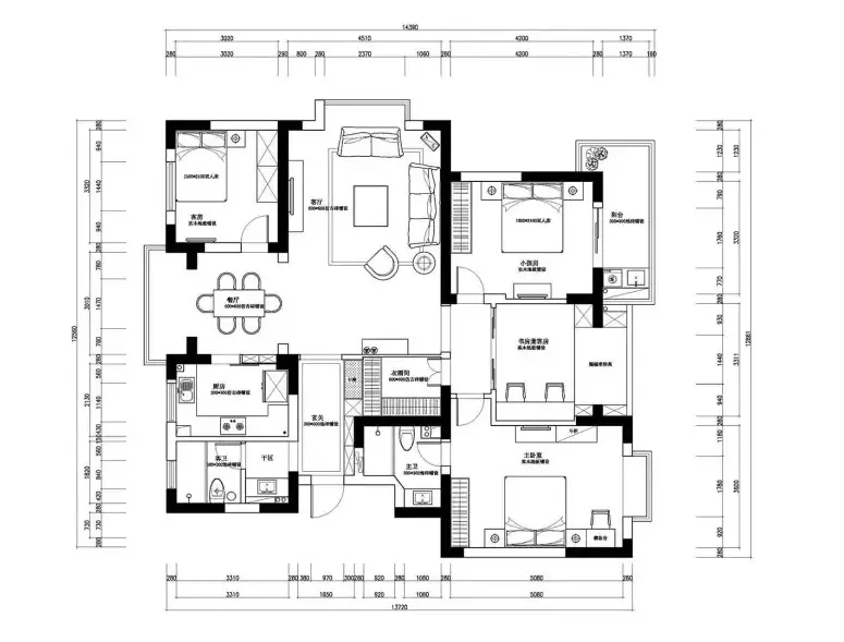
设计
这是一套套内面积170㎡的四房,考虑美式风格,不过又不想颜色那么厚重,所以融合了一些现代元素,同时放弃繁琐复杂的装饰,让新家更舒适更温馨,当然实用性也很重要。

玄关
入户视角,进门过道选择了浅色复古砖,菱形铺贴摆脱了方方正正的束缚,更具个性化也更有立体感。过道放弃了吸顶灯和吊灯,直接吊顶装小筒灯,让照明更均匀。
客厅
客厅简洁大气,没有太多造作的修饰与约束,明快轻松自在给人非常舒适的感觉。简单吊顶加暖色灯带,给客厅加分不少。
餐厅
餐厅和阳台打通,采光通风都变得更好。不想餐厅太拥挤,又想要餐边柜,所以就在厨房门做文章,储物柜加滑门设计完美解决。
厨房
厨房采光不错,马赛克墙砖搭配定制白色橱柜,第一次尝试效果还不错,蛮好看的。
主卧
主卧不吊顶直接绕石膏线,简单的装修搭配深色家具,效果也还不错挺耐看的。家具配套的,所以就没有考虑定制。
次卧
次卧风格偏现代一些,没有太多的造作装饰,简单耐看实用就好。房间小所以衣柜选择定制,这样空间使用率才高。
儿童房
儿童房满足基础功能的前提下,尽可能的腾出更多空间给孩子玩耍。还买了顶小帐篷,孩子很喜欢。
书房
书房定制榻榻米,即可储物也可当卧床,平时办公的时候,孩子就可以放榻榻米上玩耍,方便照看。
卫生间
卫生间干湿分离,日常使用更方便。砖砌柜子结实耐用还防水,为了好看选择了台上盆,确实很不错。










