装修是一个周期长且项目多的过程,而水电改造作为隐蔽工程,是整个装修过程里至关重要的一环,水电改造对装修的重要性,就如同血管经脉对人体,因此装修在做水电改造的时候,一定要做好充分的准备,才能在装修的时候有备无患、不慌不忙。

下面就来说几个水电改造前要搞定的事吧!
1、拆墙砌墙先做好!
水电改造是在拆墙与砌墙之后,我遇到好几次装修队砌墙都还没砌好,就叫我去水电交底了,然后到了现场水电放线的时候,就在地上乱画一通,结果地上很多灰尘,工人踩几脚线就没了,等到后面水电工干活了,硬是漏掉好几个插座;
墙没砌好就做水电,还有另一个坑——就是等墙砌好后,水电开槽的师傅还要跑多一轮,去给新砌的墙体开槽,而且这过程也容易弄坏已经布好的线管。
所以,水电改造之前,拆墙与砌墙一定要完成,否则就容易错漏或装修翻车。
2、买好水电材料!
如果装修模式是半包、清包的话,水电改造所用到的材料,一定要提前买好,否则水电工就要三天打鱼两天晒网了!而水电改造要买的东西东西很多,比如——电线(零火线、各种粗细规格)、底盒、线管、卡扣、电箱、空开、水管、转接头、角阀等等。
建议水电改造的辅材让水电工买,要多少买多少不浪费,自己买水管、电线等主要材料即可,可以让水电工列个清单数目,买的时候可以顺便问问商家多了能否退,毕竟水电工预估的可能会多不少,能退的话可以省几百上千元。
3、设计方案要做好!
水电改造的第一步就是水电定位,而水电定位的时候,设计方案就是依据了,设计方案上会标注哪些位置(宽度、高度)有开关与插座,按设计方案来做水电,一般都不会翻车。
如果没有设计方案就做水电的话,那么后期等你搬家具准备入住的时候,开关插座就可能因为位置不合理,导致被家具挡住,那时就后悔莫及了。
4、中央空调要定好!
像中央空调、新风系统等是要在装修前期安装的,建议在水电改造之前就定好,在水电交底定位的时候,让中央空调、新风系统的商家到场确认电路预留,免得做好水电再去定,然后却发现水电预留不正确要整改。
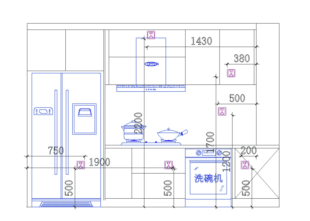
5、橱柜方案要备好!
装修水电改造,是全屋一次性做好的,包括厨房的水电。
而厨房的水电位置,与后续装修的橱柜会有直接关联,比如嵌入式电器的安装,若插座留的位置不对,就可能导致橱柜格局要更改迁就了;因此在水电改造之前,就要定好橱柜方案(出好厨房水电图),这样才能根据橱柜设计布局来留水电。
6、定好瓷砖衔接好!
水电改造完工后就是贴瓷砖了,为了衔接好后面的施工,要在水电改造的时候就定好瓷砖,水电改造一做好就可以送瓷砖进场,合理安排工序衔接,能让装修进度大大提升。当然,在水电改造完工前,可别把瓷砖搬进去,否则会干扰水电工干活。
以上6点,就是水电改造之前需要做好的准备工作,只要做好充分的准备工作,那么水电改造犯错的几率就会小很多。










