这是一套120平米的房子,户型为动静分离的四房,整体现代风的空间,搭配上深木色元素,营造了一个端庄大方的空间感;其中最特色的是电视墙的设计,加入推拉门作为过道门,既可以让电视墙完整,又提升了动静分离的隔音效果,一举两得。
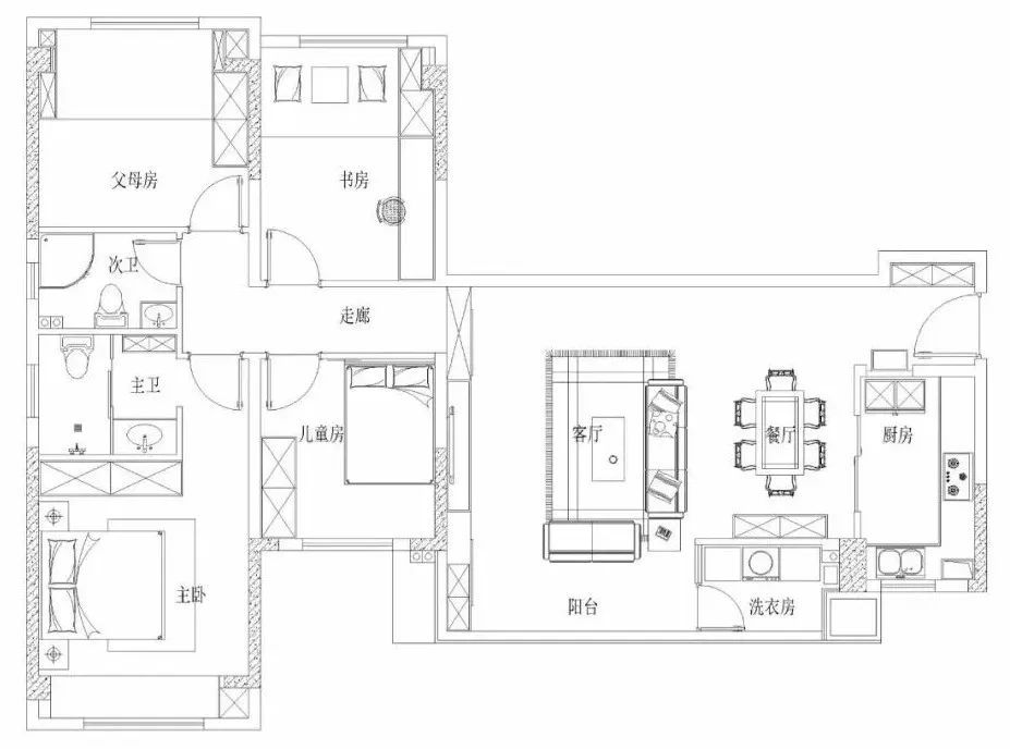
平面布置图

▲120平米的四房户型,动静分离,设计舒适合理。
客厅
▲定制电视墙整体深木色的材质,左侧加入木饰面材质,中间是展示格架,摆上装饰品,搭配壁挂电视机,整个电视墙布置显得现代端庄;侧边过道在乳胶漆墙面基础,挂上三幅装饰画,打造了一个简洁大方的客厅氛围。
▲电视墙右侧的木饰面,其实还是一扇推拉门,可以向中间推移,把过道藏在其后,关上这扇推拉门,让电视墙更完整大气,又能让客厅(动区)与卧室(静区)实现更好的隔音效果,起到动静分离的效果。
餐厅
▲客厅与餐厅是横厅格局,客餐厅的地面与天花都是做成统一的设计,灰色布艺沙发摆在空间中间,沙发后方就是餐厅区域,实木餐桌椅,垫上桌旗、布置简约精致的餐具,营造了一个端庄而优雅的用餐环境。
▲深色实木餐桌椅,墙面挂一组陶艺盘子作为装饰,上方装一盏金属灯架的吊灯,使得用餐空间更加端庄而又文艺雅致。
厨房
▲厨房以灰色地砖+白色墙砖组合,装上灰木色的橱柜,再有集成灶+嵌入烤蒸箱,整个厨房显得现代简约而自然,以L字形的格局,为主人打造了一个简洁实用而方便的烹饪空间。
▲角落布置刀具收纳架,加上水果的装饰布置,干净简洁的厨房,显得现代大方而文艺。
走廊
▲走廊藏在木饰面的推拉门后,走廊尽头墙面挂一幅装饰画,淡淡的紫灰色墙面,呈现出一种简单优雅的氛围感。
书房
▲书房定制上榻榻米,把飘窗利用起来,布置了一个休闲与收纳兼具的实用空间;整体木色的空间,布置一张实木书桌,摆上电脑与台灯,为主人提供了一个舒适的工作阅读空间,后方定制书架加入玻璃柜门与普通柜门,把常看与不常看的书籍、杂物分开收纳,方便实用。
卧室
▲卧室简洁的乳胶漆墙面,天花以简单石膏线装饰,摆上一张实木框架+皮艺靠背的床铺,装上深色成品衣柜,布置了一个实用端庄的卧室空间。
▲飘窗侧边也装上抽屉与收纳柜,为卧室提供了实用的收纳储物空间。
▲灰蓝拼色的窗帘,床头柜上布置花瓶,插入鲜花,为主人营造了一个文艺精致的卧室。
儿童房
▲儿童房采取上下床的设计,蓝色与白色交织,加入可爱童趣的元素,为主人布置了一个实用方便的休息睡觉空间。
卫生间
▲深灰色地砖+浅灰色墙砖,搭配胡桃木色洗手盆柜,一体盆+镜柜的设计,让卫浴空间显得层次端庄。















