


都知道成都有不少带超大露台的户型,这期就带大家上门看看,35㎡可以种花种葡萄的空中小花园,着实让人眼红了。
但是这户人家还有更绝的,将不足5㎡的传统小厨房,改造成中西分厨带岛台;两间小次卧,凭借隐形床,灵活变身书房、客卧、多功能室。

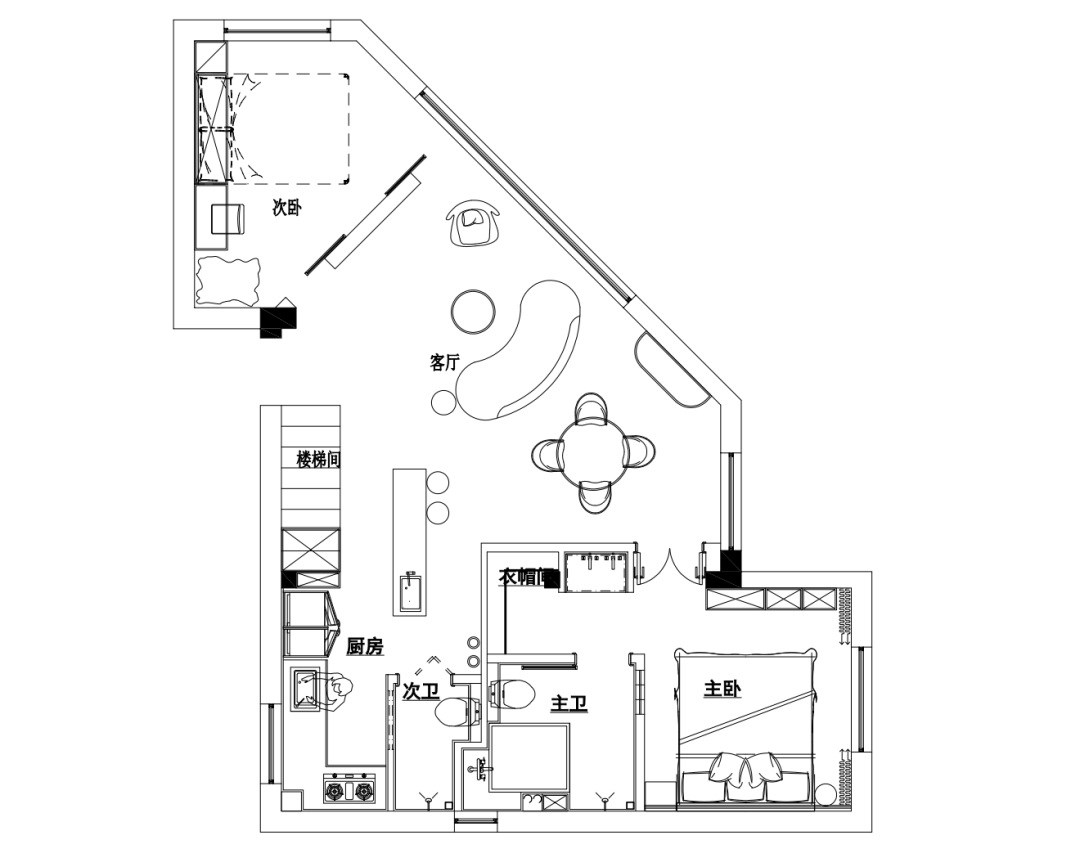
这间房位于楼栋7层,附带顶层,为了方便描述,我们称之为一楼、二楼。
从原始户型可以看到,一楼的使用面积不大,且各个区域非常封闭,厨房、卫生间密不透气,不规则阳台是最大的败笔。


改造亮点:
1.主卧打造成套间,拥有独立卫浴和衣帽间;
2.阳台与客厅打通,充分引入自然光线;
3.开放式厨房,岛台补充功能;
4.一楼次卧不规则设计,墨菲床提高空间利用率;
5.二楼次卧打造成多功能室,灵活变动;
6.相对独立的超大露台,隐私性良好。
(本案例中所有墙体改造部分均经由专业机构检测改造)
房屋位置:成都市锦江区
房屋面积:74.77㎡(单层)
房屋户型:3 室 2 厅 2 卫
全屋花费:55w(结构改造10w+硬装25w+全屋定制3w+家具软装9w+家电设备8w)
常住人口:2大1猫1狗
01
客餐厅
入户即见客厅的传统户型,原始布局的缺陷非常明显。
客厅的形状就像长方形缺个角,只能开启一面狭小的窗户,引入室内的自然光非常有限。
反观阳台,有一整面的大窗户,但是十分逼仄的三角形空间,实用性很低,只能沦落为放置杂物的废角落。
改造后,将阳台和客厅完全打通,小阳台变废为宝,环抱阳光,窗明几净。
家中猫狗双全,但是并没有跟风做猫洞、跳板、爬架之类的宠物友好设计。
按照屋主自己的理念,猫喜欢独居,狗喜欢共处,猫和狗都有自己的生活方式,能够在家中找到自己的核心地,并不需要也不见得会喜欢人类为它安排的各种小窝。
沙发前的电视墙一角,窗台的犄角旮旯里,都是猫咪最爱藏猫猫的地方。
唯一为猫猫做的考虑,就是挑选了防猫抓、不易粘毛的科技布沙发,豆腐块奶油风甜而不腻。
保留了原客厅、阳台之间的横梁,预埋了隐形灯带,与客厅布置相得益彰的暖调光源,更烘衬出家的温馨感。
客厅长窗户外,是全屋两处晾衣区的其中一处,猜猜另一处在哪儿呢?
沙发背面剩余不大的空间,作为用餐区,一套木色圆桌椅,尺寸也是精挑细选,留有充足的活动空间给屋里的人和宠物。
靠墙定制了一扇矮柜,柜面放置一些花瓶摆件,柜内方便囤一些日常消耗品。
02
次卧
异形小次卧,与客厅之间用一堵电视墙作为分界,没有安装室内门,两侧的帘子都可以拉开,随意进出,作为屋主夫妇的书房、工作台,整面定制柜补充储物功能。
男屋主是个朋友遍布四海的东北大哥,e人属性拉满,有朋自远方来成都度假,都会专门来他家玩。
定制柜里隐藏了一张墨菲床,平时收起来不占空间,一放下来就能作为临时客卧,为朋友们提供休息场所。
次卧的陈列温馨极简,美观又实用的风扇灯、百褶帘,流露出屋主夫妇作为艺术从业者的犀利审美。
03
主卧
主卧是一个功能齐全的套间,带有独立卫浴和衣帽间。
延续客厅的原木奶油风,窗帘颜色也选用了质朴亚麻白,搭配温和暖色调的隐形灯光,提供安稳舒适的睡眠环境。
卧室面积不大,还是靠定制柜节约收纳,换季的床单被套,以及部分衣物都放置在这里。
进门左手边镂空的台面,带有灯源和插座,手机充电、随手放置水杯都很方便。
大部分衣物都存放在这个开放式的衣帽间里,没有做成传统的衣柜,而是简单的悬挂收纳,空间更灵活更实用。
浴室做了干湿分离,浴室柜就在衣帽间旁边,早上洗漱换衣一气呵成,也可以作为女屋主的梳妆区。
主卫内设备齐全,可以泡澡的浴缸,可以淋浴的花洒,随意切换spa姿态,充分享受下班后的生活。
浴室内有一面小窗户,与睡眠区隔开的墙体,做了一处玻璃砖隔断,美观的同时,光线可以自屋内透入卫浴区,更通透明亮。
04
厨房+次卫
仅能方便1人转身、操作的一字型小厨房,整体布局没变,使用起来却焕然一新,让我们来看看做了哪些改变吧。


首先拆除了厨房门,变成半开放式,客餐厨连成一体,岛台作为厨房的延伸,蒸箱烤箱作为缓冲,可以一人在厨房烹饪,一人在岛台洗菜、备菜,增强了家人之间的互动性。
岛台并没有配备椅子,更方便出入厨房。屋主夫妇晚上下班回到家,从冰箱里拿出酒水,在岛台站着调杯酒,喝下后即入睡。
然后置换了烟灶和洗手池的位置,步入厨房顺应从冰箱取菜——洗手池洗菜——空白台面切菜——烟灶炒菜的下厨动线。
其次补充了顶柜,善用各种收纳工具,扩大存储空间,原本摆放在台面上的锅碗瓢盆、调料餐具,都变得井然有序。
保留了小次卫,配备了马桶、淋浴花洒,以及各种洗漱用品,朋友借宿的时候也方便许多。
05
楼梯间
进门右手边,打造的楼梯间开辟出新天地,从室内直接通往楼顶的私人露台,玻璃天窗防风避雨的同时,也不遮挡天空景色,搭配玻璃扶手,视野宽敞明亮。
楼梯间的储物功能也被最大化利用,取代了进门处的玄关柜,作为隐形鞋柜,收纳力max。
06
二楼多功能室
二楼打造了一间独立的多功房,由于屋内陈列都是灵活可变的,日后凭借兴趣增加k歌、投影仪、电钢琴、萨克斯、游戏机等设备,都不用太大改动。
值得一提是屋内这张沙发,看似平平无奇,实则暗藏玄机,拉下来就能变成一张长195cm的大床,客人来拜访,又是一处巧妙的客卧。

出门就拥有独立的洗水池,过道尽头是洗衣区,一台主人用的洗烘一体,一台提供给客人用的洗衣机,衣物晾晒也可以在此处,不用跑到一楼。
07
二楼露台
全屋最让人羡慕的,莫过于这个足有35平的超大露台,平时与朋友聚会喝酒、烤串娱乐都可以在此处。
露台正面和右面,距离最近的楼房都离得足够远,不会被窥视,充分保护隐私。
左侧唯一有邻近楼房的,由于我们在今年5月份拍摄,屋主才入住不久,原先以为是专门为秋千和吊床建起的支架,如今已经爬满了葡萄藤,遮住了隐私,也撑起一片自然之景。
整个露台也将陆续种上各种绿植花卉,我们也跟屋主一样期待,这片屋顶小花园的发展。
*除额外标注,本文所有图片均由住范儿®拍摄
(来源:住范儿,如有问题请立即联系)
“特别声明:以上作品内容(包括在内的视频、图片或音频)为凤凰网旗下自媒体平台“大风号”用户上传并发布,本平台仅提供信息存储空间服务。
Notice: The content above (including the videos, pictures and audios if any) is uploaded and posted by the user of Dafeng Hao, which is a social media platform and merely provides information storage space services.”