
这次带来的是由莫川建筑空间设计改造的异形格局325m²超大平层。原始户型空间昏暗,且硬装颜色偏深,卧室布局动线复杂,走廊狭长且无光。针对户型问题,设计师通过改善硬装色彩,利用灯光和软装家私等提升空间明亮度,针对静区空间进行重新布局,调整尺寸比例,改善不适用情况,以此来满足屋主想要一个明亮舒适家的心愿。
【改造要点】
1. 改善硬装色彩,利用灯光和软装家私等提升空间明亮度;
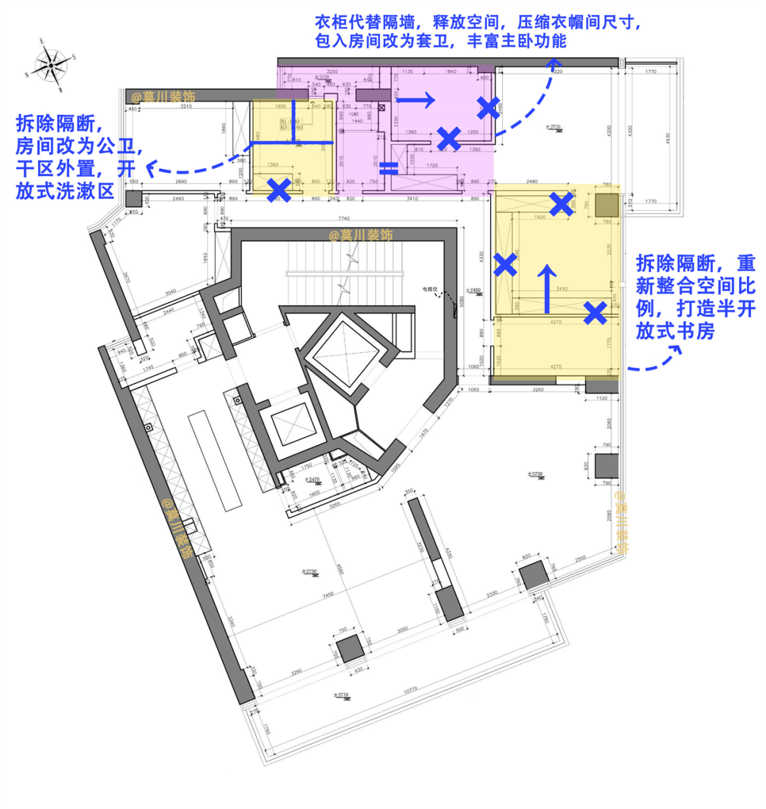
2. 针对静区空间进行重新布局,去掉无用客房,调整多个卧室尺寸比例,改善走廊问题和空间的不适用。
原户型
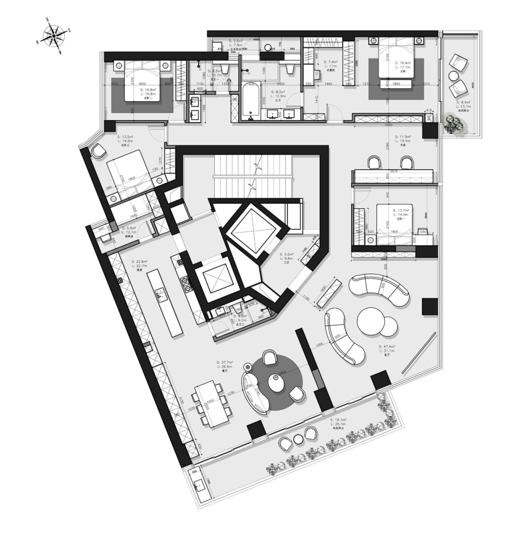
面积 325㎡ 户型 大平层
客厅
屋内整体调性选择了视觉柔和的简约色调,在呈夹角之势延展的落地窗前,匹配大面积的白来增强会客厅整体明亮感,推门而入,迎面的明朗拼凑雀跃的情感传递。
天花舍繁取简,弧形包梁处理边角,柔化会客厅不规则形态形成的生硬夹角,起到空间过渡作用。
无主灯设计,米粒形态小小顶灯不规则分散排布,夜幕降临在上方隐隐闪烁,仿佛点点星光,浪漫至极~
毛绒地毯与布艺沙发居于空间正中,色系统一呈环抱形态,围电视而置,一改传统软装布局思维,更好地利用了多边空间的优势。
电视落座夹角之间,放在亚克力定制的柜架上,既有漂浮感又不阻挡落地窗的视线,两侧承重墙用内敛的黑色不锈钢格栅收入其中,伫立在旁仿佛两名士兵守卫着空间,经典白与黑在梦幻帘下和谐又自然。
墙面如牛奶般丝滑陷入凹区,不锈钢嵌入墙体,用艺术漆做出材质的对比,摆上几个小摆件,恰到好处的阴阳墙角倒弧,点与线,线与面,形成构图的平衡,为墙面注入一丝温柔,为空间注入一抹活力。
玻璃连接左右两侧空间,小小方框包裹了另一方小世界,随意流通的光影穿梭在其之间,丰富层次之余拓宽厅堂通透性。
穿过会客厅走入第二空间,运用客厅+餐厅的大横厅设计,以沙发为界将客厅分为休闲活动区和用餐区,释放更多互动方式。
以硬包墙面为创作基点,不同尺寸大小的方框,模块化组合堆砌电视背景,在功能和视觉上足够简单又实用,使背景墙的效益最大化。
米色系云朵沙发,奶敷敷的配色与造型,质感的绵软从视觉蔓延至体感,让人一眼沦陷;耐脏科技布无需太多打理,靠背恰好与脖子齐平,两边的低扶手还能在躺下休息时充当枕头使用,有效放松身体,让人随时放飞自我~
圆形棋子状茶几,看似简单的造型却内有乾坤,掀开托盘式柜门,内部拥有大肚量的储物空间,可将书籍、玩具、杂物等收入其中,有意识地规避物品凌乱问题,点缀空间简约之美。
餐厅
直线附着于圆上,两种几何单元合成独特的枝形吊灯,照亮用餐空间;视觉随直线延伸的走向进行下移,选择了规整的长方形岩板餐桌,匹配6张棉麻与皮面结合的餐椅,简约的意式元素汇集,营造利落干净的空间观感。
厨房
胡桃木与不锈钢交错搭建专业式厨房,独立岛台中置,扩展厨房刚需功能;两侧电器内嵌,超大双开门冰柜、多个烤箱与独立发酵箱,充分满足西厨需求!中间选择玻璃充当储物柜门,跳跃相隔,通透又保留些许隐私,减轻大面积柜体的沉闷感。
书房
拆除多个隔断墙,重新整合书房与次卧的空间比例,灰玻玻璃推拉门按照使用的状态来进行开关,黑色门套、深棕色实木地板与过门石划分空间,充分释放净空引入自然采光,改善走廊狭长无光的问题。
整面收纳柜与墙面融为一体,不同尺寸大小、不同收纳方式,上嵌入灯条,下置入收纳箱,实用性与美学的结合渗透到整个书房之中;另一侧延用柜体同款棕色橡木打造书桌,一字型排布,节省空间的同时让书房更有延伸感,工位美学融入家中。
卧室
走进主卧,入目就是一片爱马仕橙的天地,热情的能量,活泼的动感,在黑色金属线条的辅助下,耀眼又不令人反感,高贵又不显俗套,将主人家的品质格调提升到极致。
弧形的圆角处理与天花的弧形进行呼应,且通过切角的手法使天花看起来更薄更轻盈,将温婉引入室内,高低错落的玻璃吊灯,为空间点缀柔和氛围,惬意又舒适。
衣帽间
衣橱顶替死板的墙面,开放式布局使空间开阔不少;梳妆桌与衣柜U型连体设计,简洁的线条与统一的材质,在玻璃的衬托下,自带稳重高级感。
卫生间
压缩衣帽间比例,拓宽自带生活阳台的房间,将其接入主卧成为淋浴、泡澡一条龙的套卫,丰富主卧功能;用欧文莱斐济砖与大理石交替搭建轻盈通透的卫生间,不同颜色与材质的砖面进行功能的分区,同时解决同层排水的问题。
镜柜设置增加储物场所,出水龙头暗装入墙节约台面空间,台盆悬浮设计避免空间堆积和拥堵,用一个又一个的小设计带来大改变!
次卧
利用墙面嵌入衣柜,子母隐藏拉手,一通到顶的银色元素,显得简约大气,于细微处增加设计感。另一面墙不做过多装饰,简单刷漆,樱桃木占据床头,不固定边几为空间提供更多可能。
公卫
去掉采光不好的无用客房,用以改善公卫的空间尺寸和舒适度,将干区外置融合走廊空间,拓宽动线宽度,既改善走廊狭长问题又释放净手功能。内区淋浴与马桶左右分隔,隐蔽式水箱+挂墙马桶,不占空间还利用假墙解决收纳不足的小问题。
走廊
黑色门套开启走廊空间,主卧门相对而立,白色门板与黑色边框,点缀装饰物自成一景。
会客厅:效果VS落地
客厅:效果VS落地
主卧:效果VS落地
书房:效果VS落地


























































