— 以下为正文 —
12月26日,闵行区规划和自然资源局发布了上海市闵行区颛桥镇江川社区MHPO-1102单元45-02地块设计方案。
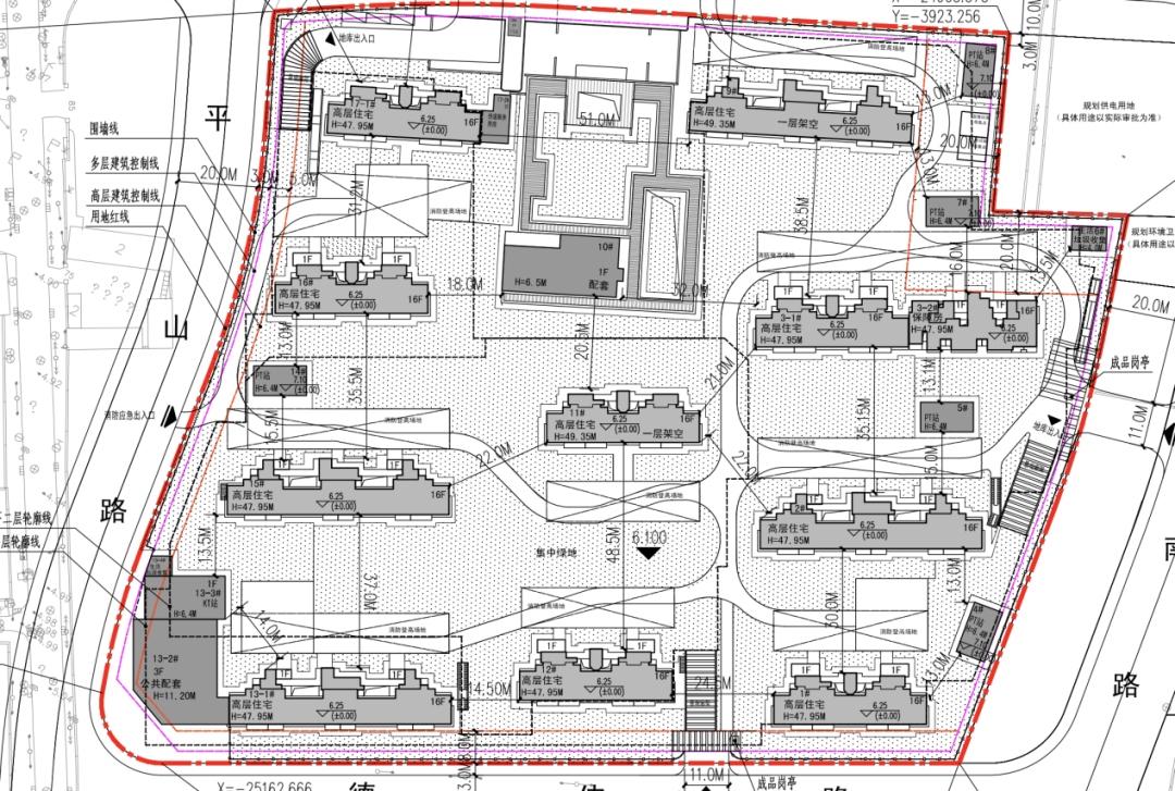
信息显示,闵行区颛桥镇江川社区MHPO-1102单元45-02地块位于上海市闵行区江川路街道,东至沧源南路,南至德伟路,西至平山路,北至江川路,地块为三类住宅组团用地。

地块用地面积39154.11平方米,总建筑面积约122980平方米(含超低能耗不计容面积约2293平方米),计容建筑面积约78308平方米,地下建筑面积约40700平方米,容积率2.0,绿化率35%。
拟建设10幢总高16层住宅(含1幢保障房),2幢配套用房,以及PT、KT站等建筑,其中9#、11#,一层架空。
今年12月15日,上海泓喆房地产开发有限公司以252387万元摘得该地块,溢价率10%,成交楼面价32230元/平方米,房地联动价为58000元/平方米,可售住宅套数下限870套。
该地块距离5号线江川路站直线约670米,附近有当代上海万国府MOMA这样的成熟小区,基础配套比较好。
此外,闵行中学、闵行中心小学、交大附中闵行分校都在该地块附近,再加上“大零号湾”的战略级规划在侧,未来价值空间可以期待一下。



