
在这个自媒体的时代,居家环境往往是内容创作的出发点和主场景。
相比随手一拍就像大片的电影感住宅,视频博主们“vlog风”的家,显然在场景更加多元的同时,在实用性上也有了更多思考。
良好的采光条件、丰富的拍摄场景缺一不可,还要有创作的场所和放空独处的空间。那些视频博主的家,就把“职住一体”赋予了新的含义。
套内面积:36㎡
(搭建后一层35㎡,二层25㎡)
户型:双层Loft
改造花费:20w
房屋坐标:四川 成都
认识TA们
设计师 :黄一一、蛋卷
苓禾设计主理人。苓禾设计由两位女性设计师共同创立,以满足居住者的个性化需求为出发点,融入舒适性、实用性、美观性和创新性元素,打造充满活力、富有创意的生活空间。
本案屋主是来自成都的两位90后视频博主,居家办公是平时的常态,热爱用镜头记录生活的他们,虽然已经装过两套房,但还是希望有一套Loft实现他们心中的dream house,在功能完善的基础上,满足日常的一些拍摄需求。
改造前实拍
这套地处高层的Loft,采光和视野俱佳,整个空间未经雕饰,可以按照屋主的喜好和生活方式自由布局规划。
改造前实拍
不过这套Loft只有4米多的层高,如何做到在搭建空间的同时不显压抑,并解决夏天的日光直射等问题,是这次改造的难点所在。
🔨 改造重点:
○ 入户门厅使用空心砖隔断,避免门口视线一览无余,又保证了足够的采光;
○ 打造堆叠式的悬挑楼梯,并在地台嵌入壁炉加湿器,作为全屋的视觉焦点;
○ 挑空区域留在了靠窗的位置,尽量保证光线充足和空间的通透性;
○ 上下两层分别设置卫生间,并在二层临窗处增加浴缸。
改造后丰富立体的生活场景,为屋主的内容创作提供了源源不断的灵感。极简的配色明亮干练,合理的布局又满足了日常的使用功能。
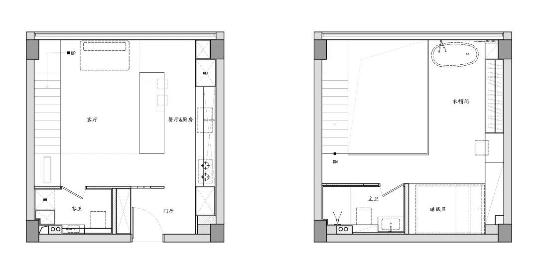
1层&2层平面布置图
一层空间
光影交织的“生活剧场”
新家视觉上的美观度,是屋主一开始就提出的重点需求。设计师以极简的配色和实用功能的搭配,构建出光影交织的“生活剧场”。
一层的空间大约35㎡,为了避免进门就“一镜到底”的平铺直叙,设计师首先在玄关新增一处隔断。
隔断墙体嵌入空心砖,光线以规整有序的形状打入玄关,又能窥见客厅的局部,为回家后的第一视角增添趣味。
走出玄关,首先映入眼帘的是一组超长的一字型厨房,橱柜由玄关延伸至窗台,不但容纳了中厨、西厨等不同功能,还把大冰箱平嵌其中。
橱柜对面2.5米的大岛台,对厨房的操作空间和收纳空间起到有效的补充,又能作为餐桌使用,宽大的台面和充足的光线方便平时记录生活。
岛台白色的体块,在这个浅色系的极简的空间中,从视觉上达到适度的隐形效果,以一种低调的方式串联起厨房和客厅。岛台提前预留了无线充电装置,为日常生活带来更多便利。
客厅的布置相对自由简约,微水泥素色地砖达到了几乎无缝的效果,与墙面保持整体视觉的统一。落地窗的内侧贴了防晒膜,能够隔离部分紫外线,减少夏天强烈光线的影响。
可移动的电视支架和小推车,方便调整位置的小型沙发,为不同场景的布置提供便利条件,对于经常拍摄视频的屋主来说,带来了更多种空间布置的可能性。
楼梯是家里的重头戏,设置在客厅装饰区。设计师最初的想法是悬浮楼梯,后来考虑到墙体承重的问题,最后以堆叠楼梯的形式呈现。
设计师向我们介绍了楼梯打造的过程:先用钢结构搭建楼梯的框架,木工阶段再进行基层处理,最后安装表层的石材,整齐的体块堆叠赋予空间独特的节奏感。
楼梯施工阶段实拍
地台以黑色石材包裹,壁炉加湿器起到了烘托氛围和增加空气湿度的双重效果。看似普通的挂画,是屋主精心挑选的家居单品,能切换到自己喜欢的画作,还是一个高品质音箱,从细节上带来舒适的视听享受。
堆叠式的悬挑楼梯,伴随着室内外光影的变化,带来轻盈灵动的韵律,成为家中独特的记忆符号。
二层空间
不断延伸的“生活边界”
这套总层高只有四米有余的Loft,想要完全搭建二层空间显然行不通。设计师选择用局部搭建的方式,在阳光更好的位置,保留空阔的挑高,确保空间的通透,消除压抑的感觉。
踏上楼梯向下俯视,因为楼梯没有安装扶手,不但整个一层空间一览无余,连窗外的公园也尽收眼底。
二层卫生间同样采用隐形门的形式,将极简的设计语言进行到底。墙上两排透光不透人的玻璃砖,是现阶段解决采光和保证隐私的最优解。
睡眠区位于二层的一角,定制书桌一直延伸到窗边,解决床边物品摆放的问题。
对于经常居家办公的自媒体从业者来说,长桌和相对独立的办公空间绝对是刚需。二层超长的桌面扮演着工作台和化妆桌的双重角色,在家也能保证良好的状态和高效的输出。
二层朝南的位置分别是一组通顶的定制柜和独立式浴缸,浴缸选用了相对轻巧的款式,无需担心承重的问题。
玻璃材质的保护栏,进一步模糊了上下两层之间的边界,也让确保了二层空间的采光效果。




























