
我们在不同的人生阶段,都有不同的目标和追求。家就是每个人当下生活状态与情感的凝练和映射。
今天为宅饭们介绍一个95后夫妻的家,他们把当下阶段的人生定义为“游戏模式”,不给空间设限,以收放自如的格局,探索着生活的多种可能性。
建筑面积:122㎡
户型:三居两卫
装修花费:42w
房屋坐标:广东 佛山
认识TA
设计师 陈智超
深耕行业8年,2025年在广州成立陈智超设计工作室。“我们深知,家不仅是栖身之所,更是心灵的港湾。因此,我们致力于根据每位屋主的独特需求和生活习惯,量身定制理想之家。”
新家改造前的毛坯状态,如同一张白纸,带给屋主和设计师充分的施展空间。身为旅行发烧友的夫妻俩,环游世界是他们现在热衷的人生大事,他们希望新家既要敞亮显大、氛围感拉满,又要有实用的布局和充足的收纳。
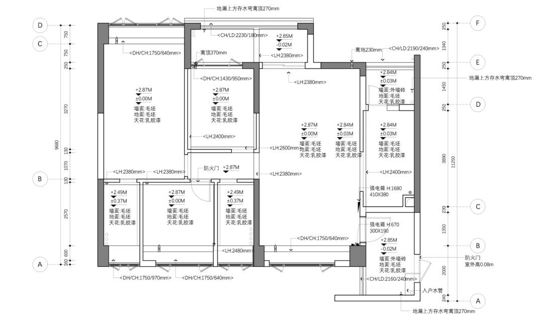
原始户型图
解决新家的诸多BUG,实现屋主生活构想的任务,自然落到了设计师身上。虽说新家在面积上看似绰绰有余,但要优化的地方还真不少,设计师从改善通风采光和增加储藏收纳两方面入手,通过格局的微调和布局的变化,为夫妻俩量身定制专属的二人世界。
🔨 改造重点:
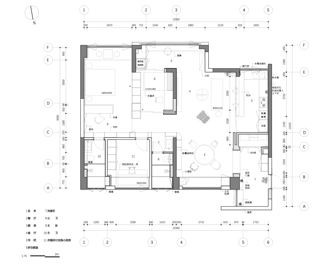
○ 玄关向厨房拓展,改善入户视角并增加800库;
○ 生活阳台纳入厨房,并拆除部分墙体+新增吧台,改为半开放式厨房;
○ 景观阳台分别融入客厅和书房,优化公共区域的采光条件和使用面积;
○ 书房拆除南北两侧墙体,改善过道采光,使用推拉门在开放和私密模式间自由切换。
落成后的新家,对于随时准备出发,人生充满各种未知可能的屋主夫妻而言,已经不仅仅是一处居所,更是一处精神的栖息地。
平面布置图
°1
小玄关
变身入户花园
原户型的门厅区域,本身面积不大,加上一部分露台,可用于入户收纳的区域就更加有限。
设计师把小阳台封闭的同时,将玄关墙体向厨房内移,为玄关争取更多的可利用空间,并把这里作为800库。不仅是日常的鞋帽包包,家里的大件物品,夫妻俩的行李箱、运动器材都能集中收纳于此,并为未来的婴儿车预留了足够空间。
800库的白色折叠门,在平时起到“隐身”效果
玄关尽头大窗与全身镜的连接,形成了奇妙的延展效果,玄关的空间和光线似乎因此翻倍。木质包裹的窗台可以作为换鞋凳使用,
局部绿植的搭配,一改当初局促的模样,从小玄关摇身一变,成为让人眼前一亮的入户花园。
°2
深度融合
客餐厨梦幻联动
玄关空间扩大之后,通往公共区域的门洞也顺势扩大为拱形门,经过一道优雅的弧线,就来到了他们专属的二人世界。
靠近玄关的餐区,以黑胡桃木作为主体色彩,在灯具和配饰中加入绿色、黄色、蓝色等跳跃色作为空间的配色,丰富的色彩搭配打破空间的沉闷,走进公区的第一视角就是一处绝美端景。
餐厅的深色木百叶帘起到了升华空间氛围的作用,立式空调同样用木百叶包裹,统一的材质和色调, 围合出复古韵味的餐厅空间。
把厨房南侧生活阳台纳入厨房,是设计师的又一妙笔。厨房在引入更多自然光线的同时,操作台面也外延至窗台,充足的台面和宽敞的过道,为每一次下厨提供方便。
厨房与客厅之间的隔墙也被拆除,取而代之的是长达2米多的吧台,既承担了西厨操作台面和水吧台的作用,同时也对厨房收纳起到补充。
厨房与客厅之间,一组玻璃折叠门让这里变得开合自如,爆炒时拉上折叠门,隔绝油烟又对采光几乎没有影响。
景观阳台同样被打通,一部分融入客厅,自然光线以“无损模式”进入室内。
夫妻俩的自行车置放于阳台,恰到好处地融入了客厅极简包豪斯的氛围
整体极简布局的客厅,低调的莱姆石背景墙质朴而高级,相比传统的乳胶漆或墙板,质感高出不止一个层级。让石材完美融入空间并非易事,设计师通过不同小样与全屋定制色板的严格对比,配合墙面的乳胶漆,达到了如今和谐一体的效果。
敞亮的布局、多变的氛围、实用的主题,身处客餐厨串联在一起的公共区域,夫妻俩可以尽情享受光影流动中的岁月静好。
°3
个性空间
开合自如功能百变
这个目前二人居住的家,书房和次卧被塑造为功能百变的个性空间,并结合夫妻俩未来的规划,为将来的生活做好准备。
紧靠主卧的朝南小卧室,在拆除了南北两侧的墙体之后,结合两组推拉门实现了开合自如的半开放状态,作为书房+临时客房使用。
书房一面超长的由定制书桌贯穿始终,足够容纳两个人同时办公。墙上两排开放式书架为将来的书籍摆放和精致器物提供了充足的空间。
书房另一面的定制柜是与主卧共用的AB面柜体,空调隐藏在柜子顶部,确保书房乃至周围公共空间保持适宜的温度。
书桌底部暗藏玄机,折叠床放置于此,关上两扇推拉门,书房就能变成一间封闭的小次卧,应对亲友偶尔留宿的情况。
与书房直接相连的景观阳台,被设计师打造为安静的阅读角。这里光线、视野俱佳,还有颇为壮阔的城市景观,为屋主平时阅读、冥想、创作提供了一个富有诗意和情怀的场所。
窗台边缘的圆形洞口直通猫厕所,内置排气扇,柜体内部隐藏洗烘套装。
朝北的小次卧,是家里又一处个性空间。这里的功能和结构随着不同使用场景而变化,方便在衣帽间和私人瑜伽室之间灵活切换。
将来有娃之后,次卧也能升级为儿童房,并新增学习区。原本闲置率很高的小次卧,被赋予不同的角色。
正对书房,比邻多功能房的主卫,实现了干湿分区。门口靠近洗漱台的柜子,中间没有背板,生活用品从两边都能拿取,柜门藤编材质也起到了通风透气的效果。
水龙头设置在洗手池的侧面,为干区预留了宽敞的可利用空间。
打开书房的推拉门,不但拯救了原本昏暗憋闷的走廊,还为北侧的马桶间带来自然光线。
满足多种打开方式的个性空间,提前为生活中的不同需求给到“预案”,在开合与转换之间,以合理的方式让每一寸空间都得到充分利用。
°4
去繁就简
不被打扰的自留地
对于经常周游世界各地,流连于诗和远方的屋主夫妻来说,睡眠空间并不需要太复杂的装饰,只需营造纯净的睡眠环境,为接下来的生活充电赋能。
卧室的黑胡桃木柜体与餐厅形成呼应,定制的书桌与床头背板一体成型,并延伸到窗台,温润的材质围合出不被打扰的身心自留地。
定制的书桌与床头之间加入挡板,居家办公时也不会打扰到另一半的休息,并在床头和主卫之间形成一道屏障,提前规避卫生间正对床头的尴尬。
这个灵活布局、充满自由气息的家,完美匹配了屋主夫妻当下的心境和生活状态,并为将来的生活的各种可能性,做好了充分的准备。



































