各位有没有发现,最近地产似乎发生了一些微妙的变化
越来越多产品端的政策出现,四代宅、风貌别墅、容积率松绑...
尤其是2024年开始各地涌现的新规,地库抬高进入大众视野
天津明确提出:住宅用地首层全架空车库不计入容积率
杭州明确提出:停车空间和主入口门厅、开放式风雨连廊等公共空间不计容/减半计容

一场由规则松动推动的源头端创新正在展开
车库不再一味藏在地下,社区也多了很多可以停留、社交、漫步的架空层和垂直生态
我们看到上海在这场规则进化中,也没有缺席
甚至给出了不计容的组合福利:
随着一批全架空社区、阳光车库陆续面世
我们正在进入地库抬高时代
这又会给产品带来什么样的改变
其实当下大家对于地库抬高的理解还比较简单
似乎打造个全明地库算是地库抬高了
安澜上海示范区实拍图
但这并不只是在产品逻辑让车库从成本单元转为生活界面
更本质的影响在于
这会重塑社区的人行动线、车行动线以及景观层级
对整个社区的规划,包括居住体感的改变,都有极大地提升
我们看到“全域抬板社区”其实已经大量在天津和杭州出现了
对于上海来说,除了随着上海新规出台后首个地库抬高项目安澜上海面世,已经有案例真实落地了
也有一些项目,曾经做过类似的创新表达
以此给开发商朋友们一些关于解题方式的参考
也让各位了解一下,这个改变会给我们的未来生活带来什么样的影响
01
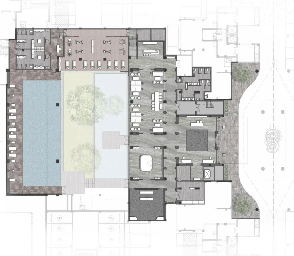
那我们先来看看,上海新规之后首个不计容的地库抬高项目,也正是万众瞩目的全球地王
安澜上海
安澜上海示意图
它位于上海近年来最热的板块,徐汇滨江
不仅拥有上海市中心稀缺地段,整体开发体量还达到了约80万方
更采用了上海首见的规划手法,全域抬板
安澜上海示意图
首层整体抬高4米,让整个社区建于4米抬板之上
而抬板之上的无车空间,才是我们平时熟悉的社区首层
体育空间、文化活动、东区和西区会所,甚至连菜场和剧场都布局其中
我们还看到
安澜上海还在二层的架空层,还做了6米的抬高处理,打造泛会所开放空间,从第三层开始才是住宅区
安澜上海示范区实景图
于是乎,整个社区发生了三重改变:
第一,重塑地库,完成地库抬高
当地库和地面是平层的,传统的地下车库变成了开阔通透的阳光车库
车库直接连通到每一栋楼的入户大堂,一个转身就回家了
安澜上海示范区实拍视频
而且阳光车库不仅实现了更好的采光和通风,也让社区景致和业主生活得到了更好地交融
让车行回家的归家体验也得到进一步的提升
不只如此,所有的车行动线都在抬板之下的首层空间
真正实现人车分流,也让空间更加纯粹
第二,重塑独立的人行归家动线
6米高的架空层空间被用来做首层的泛会所空间
于是乎,我们能看到三面通透的休息区,餐饮、读书、会客,如同景观咖啡厅一般,成为业主归家看到的第一线
安澜上海示范区实拍图
在这个泛会所空间里,也能通向二楼抬板之上
用公建化的设计语言,展示尺度,也展示对内外景观的纳入技法
在这里,如同置身于艺术馆,松弛、悠闲与审美,成为安澜的底盘,也成为业主归家的仪式感
安澜上海示范区实拍图
又因为整个社区都被抬高到抬板之上,所以未来小区业主回家
最常用的入户动线,是从小区入户大堂进来之后,先乘坐人行电梯到二楼,经过风雨连廊再进入入户大堂
安澜上海示范区实拍图
如此,通过空间的转换,营造出更尊贵的归家仪式感
更重要的是释放了抬板之上更完整的会所和泛会所空间
第三,重塑立体叠合的垂直景观空间
传统的社区景观与建筑的排布方式是地面横向排布
抬板设计,让社区景观变成了从地面往上延伸的纵向排布
安澜上海示意图
不仅实现了人视角范围内只留下赏心悦目的景观和与丰富生活有关的空间
更让景观的层叠感得到最大化的展示
安澜上海示范区航拍图
我们可以看到
板下流石花园+架空层与下沉庭院+板上浮空花园的多层立体绿化体系,将自然、阳光、通风与绿意垂直贯通到归家动线与公共空间
形成可游、可憩、可观的浮岛花园社区
安澜上海沙盘图
更妙的是6号楼的楼王景观
除了4米抬板和6米二层架空层的常规抬高,还有下沉庭院和挑高处理,让整体高差达到14米
如此构建的垂直景观体系更加的丰富多元
安澜上海沙盘图
层次依托于空间,沉浸感正来源于抬板设计后对垂直空间的规划与想象
所以,各位感受到了吗
新规给未来的高品质住宅撕开了一道口子,把好房子的标准从平面尺度推进到了垂直系统
重构地库、重构动线、重构景观会是未来地产创新的一个发力方向
安澜上海给出了上海新规之后高品质豪宅一个非常独特的样本
02
虽然上海新规之后可以参考的项目还不多
但我们回溯了一下过往,发现依旧有很多项目,在新规出台之前,宁愿舍弃计容面积的货值,也要给用户更好的社区体验
而其中最值得说道的就是
诞生于上海内环内陆家嘴滨江板块,最后一块成片开发的住宅用地
陆家嘴太古源 源邸
陆家嘴太古源 源邸效果图
陆家嘴太古源不是在做抬板抬高,而是用至少八根圆形立柱的“石油钻井”手法
通过抬高架空层将住宅层抬高到10米的三层高度
陆家嘴太古源 源邸实拍图
如此不惜成本的做抬高
第一个原因,正是因为希望无论是高中低任何楼层,都能够拥有江景视野,而且每一层的视野都不相同
英国顶级建筑事务所 Make 建筑事务所设计师手稿
如此才能将一线江景,最大最极致的纳入到业主的生活之中
同时,抬高后也能解决低楼层的采光问题
陆家嘴太古源 源邸实拍图
搭配270°采光客厅,也让低区拥有同样开阔的江景视野
滨江的生态绿意,也自然而然成为室内观景的一部分
第二,作为上海滨江段复合业态最丰富的项目,太古源从一开始就不是独立单体的存在,它被完美的嵌入这片土地
肩负着串联滨江的使命,给来到这里的人们一个更便利舒适的滨江生活
各位仔细看,陆家嘴太古源不仅创造了一个直达滨江的廊桥,还配置了8个采光井
把天然光与地面绿化带进地下室内,让业主在社区内拥有了8个下沉庭院,能与自然形成更紧密的交融
作为社区景观与地下空间的衔接
采光井之下又可以和健身房协同,以及带来地下车库也有阳光渗透
无论是停车、锻炼还是休闲,都能被阳光所包围
陆家嘴太古源 源邸实景图
而直达滨江的廊桥,只是项目整体9座廊桥网络之一
结合垂直绿化连接各个建筑单体,串联起整个社区,并将社区自然地过渡到顺畅的水岸形态,让人群可以通过廊桥直达江边
陆家嘴太古源 源邸效果图
廊桥之下,是地上地下的两层会所,搭配采光井,相较普通的下沉会所,有了更通透的采光
正是这种对光的应用,对空间的打造能力
让我们看到一个垂直通透的会所空间
陆家嘴太古源 源邸实景图
不仅有宛如浮在空中的云朵般的浮岛,整个会所还充满柔和的弧线设计
如此,才让空间的尺度感,变成天然的情绪场
创造空间并不稀罕,创造生活感才是最大的目的
当陆家嘴太古源通过架空层整体抬高的技法
不仅在外部底层空间创造出一个足够丰富的超级底盘综合体,在内部也让业主能拥有约7米的入户大堂
这种极致尊贵的归家体验
也是陆家嘴太古源愿意花费如此大量时间和心力的原因
陆家嘴太古源 源邸实景图
所以我们看到
就算是在计容情况下,也有开发商在做创新
用架空层抬高+空中连廊系统+采光井会所和地库
给到用户与自然融合更加紧密的,丰富多元的未来生活
那在新规解绑了开发商的成本重压之后,会有怎样的创新涌现
更值得我们期待
03
当我们解放思想,不局限于政策改变,或者抬板、地库等关键词
去思考还有没有整个项目抬高的案例
我会想到一个前些年非常成熟的品类:TOD
它不仅是在小区内做地库抬高,甚至通过大盘规划,将抬高逻辑外置于轨交之上,与整个街区做一个融合
而且如果你能让项目立于地铁之上
那无论是工程视角的结构问题,排水排污;还是规划设计层面的人车动线、隐私保障和景观打造
都不会成为问题
从这个视角出发,让我们具体看看前些年的网红盘:
万科天空之城
它作为一个综合体大盘,整体结构规划了四层以上的立体交通
我们来看下面这个示意图
万科天空之城示意图
会发现,万科天空之城将整个住宅区抬高了18米,这也正是这个名字的意涵
而商业和办公,被安排在住宅之下的9米之处,9到18米是住宅的车库,再下面才是地面层的轨道交通,然后再往下才是地下层
在真实兑现时,更能看出它的抬高工艺
万科天空之城实拍图
左侧是飞驰而过的地铁17号线,紧临地铁线通过徐盈路站接壤的,就是万科天空之城的商场
这种抬高,既让商场和地铁同时处在一个比较合适的位置上,实现更好的通达性,更释放了垂直空间
地铁之下不影响地面交通,商场下面的停车空间也得到了更好的规划
是更充分高效的土地开发模式
作为一个大盘,为了让每个部分不割裂
万科天空之城实拍图
商场和办公楼之间
除了最基本的地面道路可供通行外,还有一个空中廊道
万科天空之城实拍图
因为整体抬高之后,车行动线和人行动线有了更好的分隔
整个天空之城设置了非常多处停车入口
除了地面入口外,住宅、办公一层的部分也被做成了用户的停车场
万科天空之城示意图
这么做,既能解决停车的问题,也让修建在停车场之上的住宅、办公等楼栋身处商业旁边而不过于喧闹
而且我们还看到,不仅有独立车行入口,和独立人行归家动线,在商场里也安排了归家扶梯和门禁系统
万科天空之城实拍图
更重要的是,当我们来到商场顶层,从这里望向住宅区
因为空间尺度规划得刚刚好,完全不会有窥探感
让商业完全为住宅提供便利,又不影响私密性
万科天空之城实拍图
而且这个被释放出的屋顶空间,被打造成了屋顶花园,让业主和用户的活动空间更加多元
这里还是宠物友好的天空运动场,在住宅和商业中,形成过渡
万科天空之城实拍图
正是这种细致到方方面面得前置规划理念
也才让TOD项目在真正享受立体交通网络带来便利的同时,私密性和仪式感也得到保障
而这种把对土地利用到极致的开发方式,以及对复杂动线规划系统性的解题思路
放到现在这个时点,更有借鉴意义
04
最后,我们再来看看走在时代前沿的杭州项目的做法
杭州本就是产品力数一数二的存在
叠加新规出台近一年,很多项目在垂直空间的探索上都很拿得出手
比如杭州云璟
把传统的会所配套都安排在了竖向空间上
也因为这些功能空间都在地面之上,所以采光非常好,阳光充足亮堂,特别是位于二层的健身房
杭州云璟沙盘实拍图
也是因为项目的抬板设计,抬板之上的二层空间是一个非常完整的面块,基本上没有任何东西阻挡
杭州云璟规划设计图
所以,无论是会所布局还是垂直景观,都非常的完整,视野的连贯性极好
在杭州云璟不仅有丰富的视觉体验
还拥有一个被360度极致景观完全包裹,有绿化、有水系贯穿融合的一大片完整的垂直森林
效果示意动图,非最终交付标准
我们还看到,把沿街立面做得像艺术馆一样的
大家房产·咏印明庐
为了让沿街面的尺度感拉到最满,它在6米首层的基础之上,又抬高了6米,达到足足12米
咏印明庐沙盘图
而更让我震惊的,是他们的车行动线
这是我目前看到的
唯一一个能安排车到二楼的抬板项目
咏印明庐除了在一层安排了不同的地库入口,还预留了一个能上二层的车行动线
咏印明庐沙盘图
甚至考虑到了消防车、搬家大货车的通行需求,做了超高层高的过道连廊
我们再来看看奥体板块内,唯一符合新规条件的项目
杭州保利天珺
不仅位于杭州绝对中心的奥体核心,周边还罕见的拥有约3.5万方公园生态景观
杭州保利天珺区位示意图
通过全域抬板设计实现内外关系的深度融合
约5.4米的抬板叠加约5.2米的架空层,整体近11米的抬高,将公园景观引进社区,让低区也成为无遮挡的景观层
杭州保利天珺示意图
无论是卧室、阳台、书房、卫生间甚至是设备平台,都能拥有优质的采光和视野
杭州保利天珺实景图
还专门在儿童区上方规划打造一座约58米长的架空连廊,如同飘带在林间蜿蜒伸展
未来可通过步道直达公园
杭州保利天珺实景图
让行走在社区内部也有一种与城市深度交融的探索沉浸式体验
所以各位发现了吗
杭州的创新项目都做的很极致,不管是在尺度上,配置上,还是细节上
或许这也是他们的产品力能一直得到业内和市场认可的原因
05
其实,各个城市出台新规,优化容积率规则的本质
就是通过放松指标
让开发商们敢于创造更丰富的社区空间,给业主提供更多元的生活体验和景观享受
大量跟产品有关的政策正在密集落地
我们早已在四代宅、风貌别墅、好房子中得到过验证
如今政策在地库抬高这也开了个口子
而这并不是一个空谈畅想
新规出来之后,无论是天津、杭州,还是上海,也都有新的项目不断涌现
我们也看到了,在不同的城市,不同的项目上面,大家都给出了截然不同又十分惊艳的解题方式
我们为什么总是期待百花齐放
不正是因为只有多元的选择,才能真正意义上打造出属于大众的好房子
所以你看,哪怕只是一个新规则的改变,就可以有这么多的呈现,有这么多好产品的诞生
那如果每一条新规之下,大家都可以演绎出不一样的东西,那才是真正属于地产的百花齐放
这或许也就能打破当下产品的同质化
走向真正的,品质时代










































