位于西二环、三环之间的丽泽,未来将有一座5条轨道交通换乘枢纽,同时它也将是一个城市航站楼,从这里可以直达大兴机场。
据《北京日报》报道,京投公司昨天表示,丽泽航站楼计划将在明年6月底具备初期投用条件,实现3条地铁线在此换乘,可24分钟到达大兴机场。
丽泽航站楼枢纽位于丽泽金融商务区北区,丽泽路以北,莲花河以西。总用地面积约7.1万平米,建筑规模约23.85万平方米。

根据规划,这里未来将是11号线、14号线、16号线、新机场线和丽金线这五条地铁线的换乘车站。而目前,已经有14号线、16号线两条地铁开通并实现换乘。
目前正在建设的是丽泽航站楼综合交通枢纽,以及大兴机场线北延(草桥——丽泽商务区站)。
京投公司相关负责人表示,枢纽项目目前处于地下主体结构施工收尾阶段,有望于今年6月完成钢筋骨架搭建、实现封顶,随后转入设备安装、内部装修。
他透露,丽泽航站楼计划2027年6月底具备初期投用条件,届时将接入大兴机场线、14号线、16号线,从丽泽到大兴机场只需24分钟。
而未来11号线和丽金线建成通车后,这里就将成为一个5条轨道交通交汇的枢纽。
根据公示信息,航站楼枢纽分为地下五层,其中丽泽航站楼主要位于地上及地下一层至三层,这里将设置旅客值机和行李托运功能,未来旅客在丽泽航站楼就可以完成值机和托运,“轻装出发”乘坐机场线抵达新机场候机。
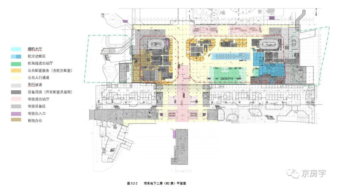
首层将设置3个出入口。地下一层主要接驳口位于北侧,服务出租车、网约车到达旅客。同时,地下一层还设置了岛式开放旅客值机岛、值机区等。
地下二层也有值机岛,主要接驳口位于西侧和北侧,分别服务乘坐14号线、16号线、M11号线、丽金线到达的旅客。
地下三层则是新机场线的旅客到达站台和到达厅。
5条地铁线路在枢纽的布局设置方面,新机场线车站为地下两层(局部三层),为一岛一侧车站。车站VIP站厅位于地下一层,站厅层位于地下二层,站台层位于地下三层。16号线车站共3层,地下一层为14号线与16号线的公共站厅区、地下二层为14号线站台层、地下三层为16号线站台层。
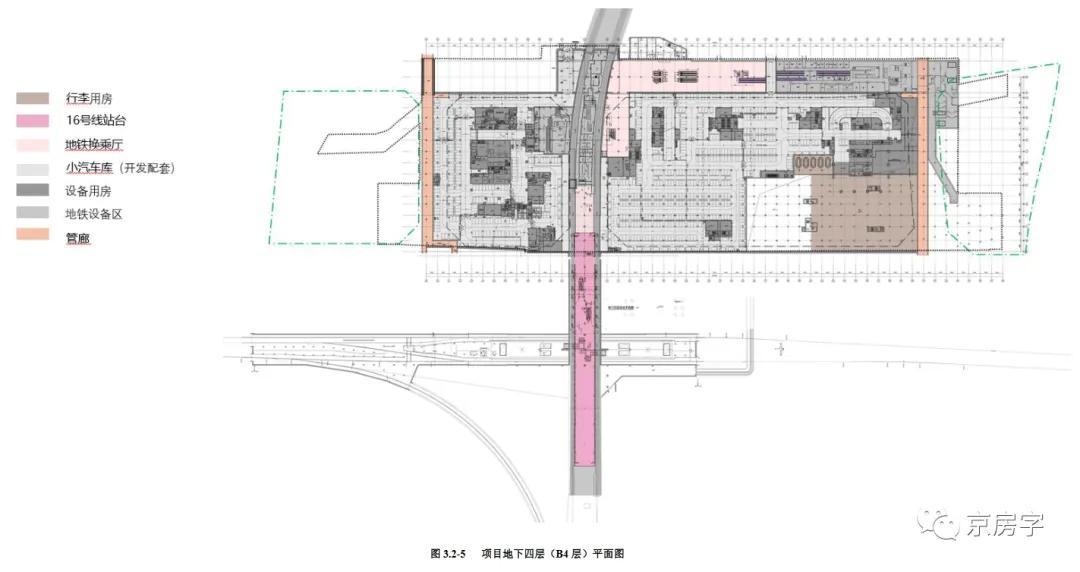
丽金线车站与11号线车站错位叠落设置,两站一体,为地下四层岛式车站。其中,地下二层为两线站厅层,地下三层为丽金线站台,地下四层为11号线及丽金线换乘厅,地下五层为11号线站台层。





